羽村市川崎1丁目 <建築条件付売地(販売予定)> 弊社専属専任媒介物件

<建築条件付売地(販売予定)>
JR青梅線「羽村」駅徒歩7分・限定2区画・40坪超の整形地
羽村駅西口土地区画整理地内・5m公道・住環境良好・理想のマイホーム用地!
*3月30日(月)2号区画は商談中となりました。
*4月5日(日)1号区画ご案内予定の為、3月30日以降お問い合わせ頂きますお客様はその後のご案内とさせて頂きます。
■JR青梅線「羽村」駅徒歩7分・限定2区画・40坪超の整形地。
■羽村駅西口土地区画整理地内・5m公道・住環境良好・理想のマイホーム用地。
■本件土地は「羽村駅西口地区」地区計画の「低中層住宅地区」に該当しております。「暫定容積率(区画道路整備前)80%」・「目標容積率(区画道路整備後)150%」の地域です。
■羽村駅西口地区計画においては誘導容積型地区計画を導入しています。誘導容積型地区計画は道路などの公共施設の整備と土地利用を一体的に誘導していくために「暫定容積率(区画道路整備前)」と「目標容積率(区画道路整備後)」の二段階の容積率を定めるもので公共施設の整備状況等に応じて特定行政庁から認定を受けた場合に高い方の容積率(目標容積率)を適用することができます。
■地区計画は、駅周辺への商業・業務施設等の都市機能の集約、居住空間の集積を図り、多くの人々の交流や定住促進を通して、にぎわいと活力のある複合的な中心市街地の形成を目標としております。
■本件土地は、土地売買契約後3ヶ月以内に売主指定の建築会社と建物請負契約を締結することを条件として販売します。この期間内に建物請負契約が成立しない場合は、土地売買契約は白紙となり受領した金銭は全額返還されます。
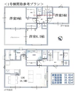
■1号土地価格:3,120万円・建物参考プラン価格:1,460万円・総額参考:4,580万円(税込)。
■本件地域は売出物件が少なく注目のある住宅地です。詳細についてはご来店をお願いいたします。
■地目が畑にて農地法第5条許可取得後お引渡しいたします。
■本件土地は現在売主(建設会社)による取得手続き中です。引渡し予定:2026年6月。
■専属専任媒介物件にて弊社のみの取扱いです。

2026年3月30日

