羽村市緑ヶ丘4-8他 新築戸建 1号棟
物件番号:
物件種別:新築一戸建
物件番号:
物件種別:新築一戸建| 価格 | 3,850万円 | 完成時期 | 2026/4 |
|---|---|---|---|
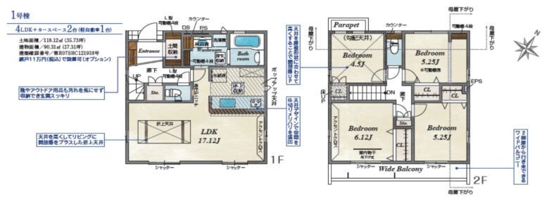
| 間取り | 4LDK / | ||
| 私道負担・道路 | 公道 北西 6m |
||
| 階建て | 2階建て | 建物向き | - |
| 土地面積 | 118.12m2公簿 | 建物面積 | 90.31m2 |
| 所在地 | 東京都羽村市 緑ヶ丘4丁目 8 地図を見る | ||
| 交通 |
JR青梅線羽村駅 徒歩21分 JR青梅線小作駅 徒歩24分 |
||
| 販売戸数 | - | 総戸数 | - |
| 設備・特徴 |
|
|---|---|
| リフォーム履歴 | - |
| リノベーション履歴 | - |
| 周辺環境 |
担当者からの一言
羽村市役所通り沿いの中央労働金庫前にあるHouse Network(株)住宅情報館です。
<屋号(サイト名):House Network>
★【新築戸建ご購入に限り】大変お得な「仲介手数料半額」応援フェア開催中!皆様の新生活と笑顔を応援致します。
【弊社の特徴】
(1)こちらの物件をご購入された場合、約1,215,000円(税抜)の仲介手数料が半額です!新生活に必要な引越費用やエアコン・網戸・照明・カーテンレール・カーテン・TVアンテナ・食器棚・家電製品等をご購入する諸経費にまわせます。
(2)明朗会計です!資金計算にて総額を表示致しますので他社様のお見積と比較して下さい。総額は必ずご確認して下さい。
(3)売却サポートフェア開催中!特にお買換えをお考えの方はご注目下さい。又ご自宅をスーモ・アットホーム等に掲載し全力でご売却に努めます。
(4)ご成約の区画は「ご成約」の表示に随時変更し分かりやすく最新情報を発信しております!
(5)ホームページ掲載の「お客様の声」で販売実績をご確認下さい。ご安心して何でもお気軽にご相談下さい!
(6)主に目の届く近隣地域の物件を扱っておりますので遠方の業者様とは違い、お引渡し後何か問題が生じた場合でも迅速な対応が可能です!
(7)外観・室内写真は新築戸建が未完成の場合、同仕様の写真に「施工例」と記載し掲載しております!
(8)主な住宅ローン金融機関:住信SBIネット銀行・三井住友銀行・西東京農業協同組合・中央労働金庫・フラット35取扱い金融機関等。
(9)営業時間は朝10時~夜6時迄年中無休(お正月休みを除き)営業しておりますが、ご予約を頂けますと時間外でも喜んでご対応させて頂きます!
その他お客様の立場に立ってご提案出来るよう心掛けております。
頭金が無い、ローンに対しての不安等もお気軽にご相談下さい!
ご内見の際は弊社にご連絡下さい!急なご連絡でも結構です。
親切・丁寧・分かりやすく物件をご紹介させて頂きます。
ご来店、心よりお待ちしております。
| 物件名 | 区画番号 | - | |
|---|---|---|---|
| 所在地 | 東京都羽村市 緑ヶ丘4丁目 8 | ||
| 交通 |
JR青梅線羽村駅 徒歩21分 JR青梅線小作駅 徒歩24分 |
||
| 価格 |
3,850万円 | ||
|---|---|---|---|
| 間取り | 4LDK / | ||
| 間取備考 | - | ||
| 駐車場 | - | ||
| リフォーム履歴 | - | リノベーション履歴 | - |
| インスペクション | - | 瑕疵保険・保証 | - |
| 販売戸数 | - | 総戸数 | - |
| 建物構造 | 木造 | 完成時期 | 2026/4 |
|---|---|---|---|
| 階建て | 2階建て | 部屋・建物向き | - |
| 建物面積 | 90.31m2 | バルコニー面積 | - |
| 土地面積 | 118.12m2 公簿 | 私道負担面積 | - |
| 土地権利 | 所有権 | 都市計画 | 市街化区域 |
| 建ぺい率 | 50% | 容積 | 100% |
| 地勢 | 平坦 | 地目 | 宅地 |
| 接道状況 |
一方 公道 北西 6m |
セットバック | 無- |
| 用途地域 | 第一種低層住居専 | 国土法届出 | 不要 |
| 現況 | 未完成 | 引渡/入居日 | 相談 |
| 取引態様 | 仲介 | 仲介手数料 | - |
| その他概要特記事項 | 建築確認番号:第R07SHC121938号 | ||
| 設備・特徴 |
|
||
| 諸条件・相談 | |||
| 情報公開日 | 2025年12月7日 | 次回更新予定日 | - |
物件紹介動画
羽村市緑ヶ丘4-8他 新築戸建 1号棟


















