福生市武蔵野台1-16-10 売地
物件番号:
物件種別:売地
物件番号:
物件種別:売地| 価格 | 2,700万円 | 土地面積 | 193.24m2 公簿 |
|---|---|---|---|
| 所在地 | 東京都福生市 武蔵野台1丁目 16-10 地図を見る | ||
| 交通 | JR青梅線福生駅 徒歩12分 | ||
| 坪数 | 58.4坪 | 坪単価 | 462,329円 |
| 最適用途 | 住宅 | ||
| 設備・特徴 |
|
|---|---|
| 周辺環境 |
担当者からの一言
■JR青梅線「福生」駅徒歩12分・JR八高線「東福生」駅徒歩8分。
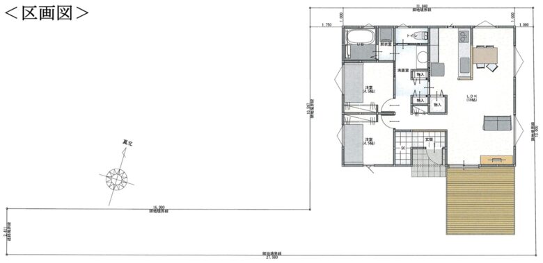
■土地面積約58.4坪!【間口約2.4m(両隣地ブロックの内側寸法)・奥行約16m・整形部分面積約46.8坪】。
■前面道路は都道幅員約25m【片側歩道約3.5m・片側道路幅員約7.98m】・水道は既設20ミリ・下水150ミリ引込済。
■「福生病院」迄徒歩8分・「福生第一小学校」迄徒歩13分・「マルフジ福生店」迄徒歩7分・「西友福生店」迄徒歩11分。
■「武蔵野台東公園」迄徒歩2分・「武蔵野台南公園」迄徒歩4分・「武蔵野台児童館」迄徒歩5分・「福生地域体育館」迄徒歩5分。
■本件地域は上記の通り交通・買物・医療・教育・コミュニティ関連施設の他、飲食店等も多く利便性の高い地域。
■建築条件無しの売地にてお好きなハウスメーカーで建築可能。
■建ぺい率60%の地域なので「平屋(約35坪以内)」や容積率200%なので「3階建」も可能。
■ご参考まで平屋19.54坪のプラン有り・建築のご相談等弊社協力店のご紹介も致します。
■ご見学は弊社<専属専任媒介物件>にて事前にご連絡下さい・お車を敷地に停めて見る等エスコート致します。
| 物件名 | 区画番号 | - | |
|---|---|---|---|
| 所在地 | 東京都福生市 武蔵野台1丁目 16-10 | ||
| 交通 | JR青梅線福生駅 徒歩12分 | ||
| 価格 |
2,700万円 | 坪単価 | 462,329円 |
|---|---|---|---|
| その他諸費用 | - | 土地面積 | 193.24m2 公簿 |
| 坪数 | 58.4坪 | 建築条件 | 無 |
| 土地権利 | 所有権 | 都市計画 | 市街化区域 |
| 建ぺい率 | 60% | 容積 | 200% |
| 地勢 | 平坦 | 地目 | 宅地 |
| 接道状況 |
一方 公道 西 25m |
セットバック | 無- |
| 用途地域 | 準工業 | 国土法届出 | 不要 |
| 設備・特徴 |
|
||
| 諸条件・相談 |
|
||
| その他概要特記事項 | - | ||
| 現況 | 更地 | 引渡/入居日 | 即時 |
| 取引態様 | 専属 | 仲介手数料 | - |
| 情報公開日 | 2026年4月12日 | 次回更新予定日 | - |
物件紹介動画
福生市武蔵野台1-16-10 売地














































<建築条件無し売地>お好きなハウスメーカーで建築可能!土地面積約58.4坪!
建ぺい率60%の地域なので「平屋(約35坪以内)」や容積率200%なので「3階建」も可能。
<弊社専属専任媒介物件>